

Ο πελάτης μας προσέγγισε με μια συγκεκριμένη πρόκληση κάμψης που αφορούσε έναλεπτό χαλύβδινο φύλλο με δομή νευρώσεων, απαιτώντας τόσο αποτελεσματικότητα όσο και διαστατική συνέπεια.
Οι κύριες απαιτήσεις του πελάτη περιελάμβαναν:
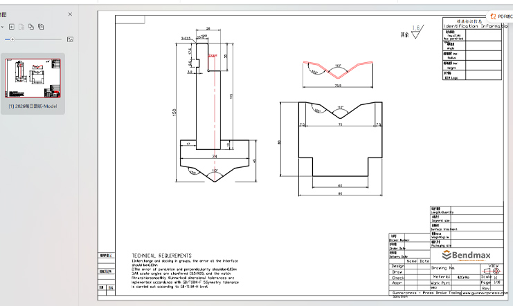
Υλικό:Φύλλο χάλυβα,Πάχος 1,2 χιλιοστών
Μηχανή: Πιεστικό φρένο Amada
Κάτω άνοιγμα μήτρας: V = 60 mm
Μέθοδος σχηματισμού: Διαμόρφωση με ένα χτύπημα (κάμψη σε ένα βήμα)
Χαρακτηριστικό μέρους:Προφίλ πολλαπλών γωνιών μεενισχυτική νευρώση (δομή ενίσχυσης)
Προσδοκώμενη ποιότητα:
Σταθερές γωνίες κάμψης
Καθαρή διαμόρφωση χωρίς παραμόρφωση
Ομοιόμορφο σχήμα πλευρών
Υψηλή επαναληψιμότητα για μαζική παραγωγή
Επειδή το τεμάχιο εργασίας περιλαμβάνει γεωμετρία νευρώσεων και πολλαπλές γωνίες κάμψης, οι τυπικές ευθείες διατρήσεις δεν ήταν κατάλληλες για την επίτευξη του απαιτούμενου σχήματος με μία μόνο λειτουργία.
Αφού εξέτασε το σχέδιο, η ομάδα μηχανικών μας εντόπισε αρκετές βασικές προκλήσεις:
Η παρουσία ενός νεύρωση (χαρακτηριστικό ενίσχυσης) αυξάνει την αντίσταση σχηματισμού και αλλάζει τον τρόπο ροής του υλικού κατά την κάμψη. Χωρίς κατάλληλη υποστήριξη εργαλείων:
Αυτό θα μείωνε την αποδοτικότητα της παραγωγής και θα αύξανε τον χρόνο κύκλου.
Ο πελάτης ζήτησε συγκεκριμένα σχηματισμός ενός χτυπήματος, που σημαίνει:
Αυτό απαιτεί εργαλεία προσαρμοσμένου προφίλ, όχι τυπικές γροθιές.
Με χάλυβας 1,2 χιλιοστών, η λανθασμένη επιλογή εργαλείων μπορεί να προκαλέσει:
Η σωστή στήριξη από τους ώμους της μήτρας είναι απαραίτητη.
Μετά από τεχνική αξιολόγηση, οι μηχανικοί μας συνέστησαν τη χρήση Εργαλεία κάμψης πλευρών κατά παραγγελία, ειδικά σχεδιασμένο για να ταιριάζει με το προφίλ που φαίνεται στο σχέδιο.

Συνιστώμενη διαμόρφωση εργαλείων:
Τύπος εργαλείου:Σετ διάτρησης και καλουπιού κάμψης πλευρών
Συμβατότητα μηχανήματος:Σύστημα Amada
Άνοιγμα Κάτω Μήτρας:V = 60 mm
Μέθοδος σχηματισμού:Σχηματισμός προφίλ με ένα χτύπημα
Υποστήριξη Υλικού:Βελτιστοποιημένο για διαμόρφωση λεπτών φύλλων
Αντιστοίχιση προφίλ:Προσαρμοσμένη γεωμετρία που ακολουθεί το σχήμα της νευρώσεως του τμήματος
Αυτός ο σχεδιασμός εργαλείων επιτρέπει τον ταυτόχρονο σχηματισμό της νευρώσεως και των γωνιών με μία κίνηση πρέσας.
Η δομή των νευρώσεων που φαίνεται στο σχέδιο περιλαμβάνει:
Οι τυπικοί διατρητήρες δεν μπορούν να ελέγξουν με ακρίβεια την παραμόρφωση σε τέτοιες κατασκευές. Τα εργαλεία κάμψης νευρώσεων παρέχουν:
Η ειδικά σχεδιασμένη μύτη του τρυπητήρα υποστηρίζει τη γεωμετρία της νευρώσεως και αποτρέπει την κατάρρευση κατά τη διαμόρφωση.
Με αντίστοιχη γεωμετρία εργαλείων:
Τα προσαρμοσμένα εργαλεία πλευρών διασφαλίζουν:
Μετά την εφαρμογή των συνιστώμενων εργαλείων κάμψης νευρώσεων, ο πελάτης πέτυχε:
Τα τελικά διαμορφωμένα εξαρτήματα ανταποκρίθηκαν στις διαστατικές και λειτουργικές απαιτήσεις του πελάτη.

Αυτή η περίπτωση καταδεικνύει ότι όταν κάμπτονται εξαρτήματα με νευρώσεις ή δομές ακαμψίας, η επιλογή του σωστού προφίλ εργαλείων είναι κρίσιμη.
Για εξαρτήματα που απαιτούν:
Προσαρμοσμένα εργαλεία κάμψης πλευρών είναι συχνά η πιο αξιόπιστη λύση.
leave a message
Scan to wechat :
Scan to whatsapp :